PORTFOLIO
Colleyville Kitchen and Wine Room
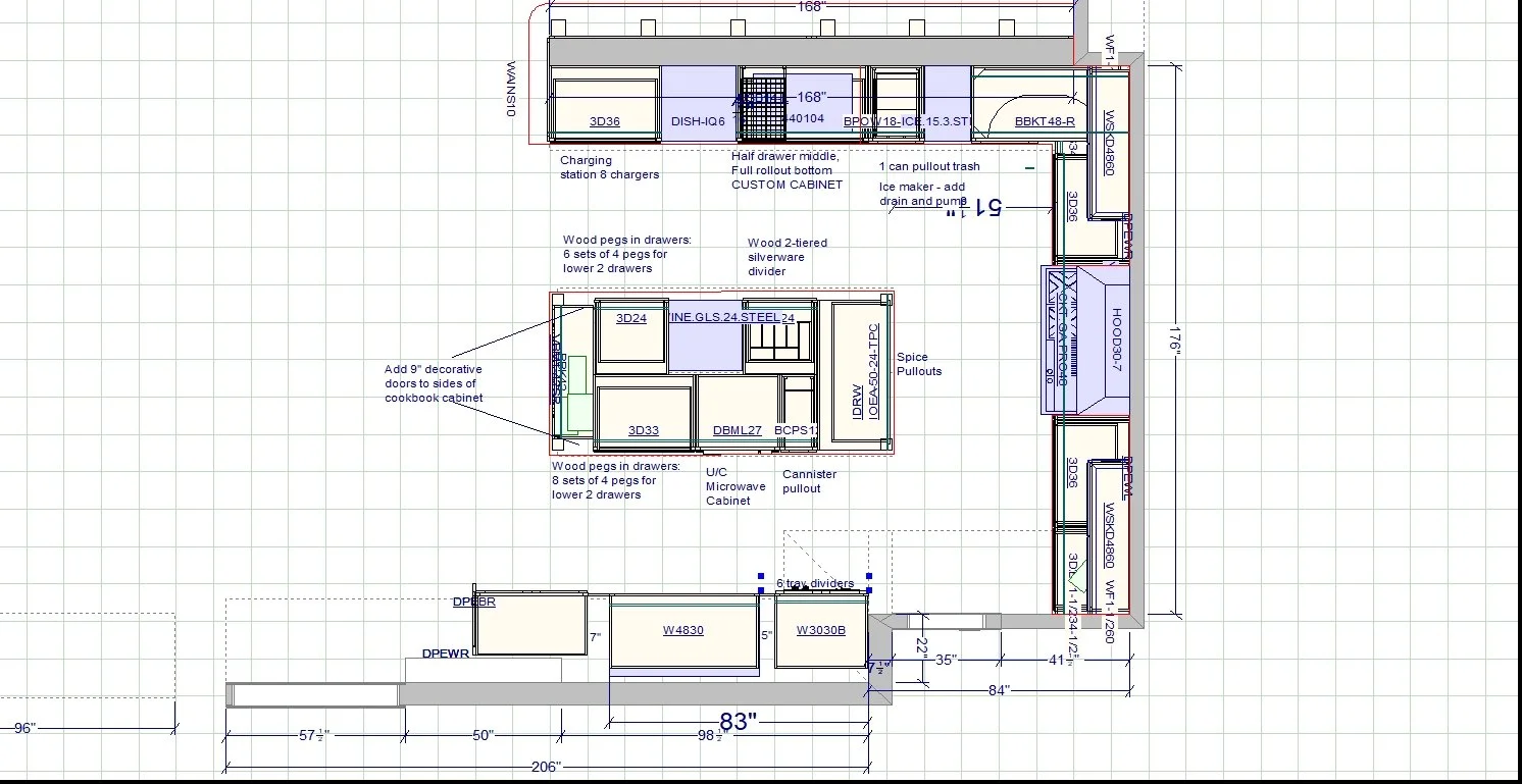
This luxury kitchen and wine room project blends functionality and elegance for socialite occasions. The kitchen features beautiful transitional white cabinetry and contrasting custom two-tone warm coloring for a welcoming gathering space for friends and family.
Eye-catching quartz and marble countertops alongside high end appliances enrich this beautiful kitchen with style and sophistication. In the adjacent dining area, a wine room offers a luxurious retreat with custom accents that integrate style with functionality. Soft lighting creates an intimate ambiance for relaxing gatherings or social occasions.
Together, these spaces embody a perfect balance of modern design and elegance.

